皆様、こんにちわ。
大阪高級賃貸マルシェです。
いつも物件紹介記事を見ていただきありがとうございます。
本日も、新着物件の情報を余すことなくご紹介させていただきます!
エスリードレジデンス梅田マークス|賃貸物件情報」について
本日ご紹介の物件は大阪駅徒歩圏内、
築2年以内の1LDKのご紹介です♪

「エスリードレジデンス梅田マークス」の物件概要
| 所在地 | 大阪府大阪市北区大淀中2丁目11-17 |
|---|---|
| 最寄駅 | 阪急神戸本線/中津駅 徒歩9分 阪急宝塚本線/中津駅 徒歩9分 JR東海道・山陽本線/大阪駅 徒歩17分 JR大阪環状線/大阪駅 徒歩17分3分 |
| 築年数 | 2024/01 |
| 間取り | 1LDK |
| 構造 | 鉄筋コンクリート |
「エスリードレジデンス梅田マークス」の周辺施設
- 大丸・梅田店(その他)まで1358m
- ライフ大淀中店(スーパー)まで115m
- グランフロント(ショッピングセンター)まで1113m
- セブンーイレブン大阪大淀南1丁目店(コンビニ)まで628m
\ 地域の特性を知りたい方へ /
「エスリードレジデンス梅田マークス」の室内詳細
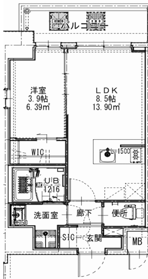
間取り

東向きの1LDKのご紹介です。
8帖越えのリビングルームに4帖ほどの寝室
お一人暮らしにはもちろん、初めての同棲にもオススメなお部屋になります✨
TVモニター付インターホン / 防犯カメラ / 人感センサー / カードキー / オートロック / 宅配ボックス / ウォークインクローゼット / シューズウォークインクローゼット / シャワー / 浴室乾燥機 / 脱衣所 / 給湯 / ウォシュレット / 洗面所独立 / 都市ガスコンロ設置済 / 都市ガス / システムキッチン / カウンターキッチン / 冷房のみ / エアコン / 24H換気システム / BS / CS / CATV / 光ファイバー / CATVインターネット / インターネット使用料無料 / 二人入居可 / 室内洗濯機置き場 / エアコン
※設備をクリック頂くと設備で条件を絞ることが可能です
リビング

白基調の開放感あるリビングルーム
リビング側は柱も出ていないので、家具の配置にも悩まず使いやすい間取りとなっております。
白基調で清潔感もばっちりです♪
キッチン

2口ガスコンロのシステムキッチンになります。
後の棚に収納スペースもあり収納力抜群になっております♪
カウンターキッチンでリビングから寝室迄見渡せるのが開放感がある秘訣です!!
バスルーム

もちろん、浴室乾燥機付き!
寒い季節には欠かせないですよね。
暖房機能などもございますのでぽかぽかなお風呂に入ることが出来ます!
脱衣所

三面鏡付きの洗面台完備です!
朝の身支度も捗る三面鏡✨
収納も沢山出来るので女性の方にもおススメです!
洋室

洋室も白基調でなんだか気持ちがいいですね✨
東向きの窓も付いているので明るいお部屋になります!
また、4帖ほどあるのでベッドも配置可能◎
収納

お部屋ギリギリまで収納になっております。
上段の収納は季節ものを収納するのにオススメです♪
ポールが付いているので長いコートなども収納出来ます!
「エスリードレジデンス梅田マークス」のおすすめポイント
こんな条件でお探しの方にオススメ
住みたい条件
その他の条件
お部屋探しでお困りの方へ
クラスモ梅田茶屋町店では大阪市内全域はもちろん、大阪梅田を中心に中崎町、中津、天六、南森町など北区の物件や福島区の物件などをメインにご紹介させていただいております。 新築の物件やペット可能な物件などお客様のご要望に合わせて幅広く物件を取り扱っております。 大阪市で賃貸物件をお探しの方は是非ハウスコムFC新大阪店へお問い合わせください。