皆様、こんにちわ。
大阪高級賃貸マルシェです。
いつも物件紹介記事を見ていただきありがとうございます。
本日も、新着物件の情報を余すことなくご紹介させていただきます!
「Alivis野田阪神|賃貸物件情報」について
本日、ご紹介する物件は人気エリア野田阪神に建った
3LDKファミリー物件のご紹介です✨

「Alivis野田阪神」の物件概要
| 所在地 | 大阪府大阪市福島区海老江3丁目9-10 |
|---|---|
| 最寄駅 | JR東西線/海老江駅 徒歩6分 阪神本線/野田駅 徒歩8分 Osaka Metro千日前線/野田阪神駅 徒歩8分 阪神本線/淀川駅 徒歩11分 |
| 築年数 | 2025/08 |
| 間取り | 3LDK |
| 構造 | 鉄筋コンクリート |
「Alivis野田阪神」の周辺施設
- 海老江東小学校(小学校)まで330m
- 鷺洲小学校(小学校)まで670m
- イオンスタイル海老江(スーパー)まで320m
- 食品館アプロ 海老江店FESTA(スーパー)まで416m
\ 地域の特性を知りたい方へ /
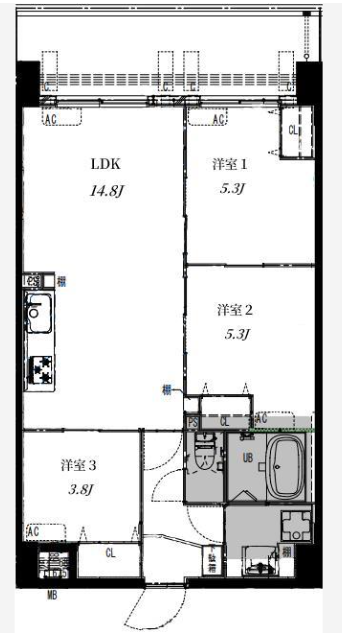
「Alivis野田阪神」の室内詳細
間取り

これぞ理想な3LDK!
アウトポール設計になっておりリビング、洋室共に柱の出っ張りが無く快適✨
エアコンは全部屋完備になっており、性能保証アリ!!
TVモニター付インターホン / 防犯カメラ / 電子キー / 電子ロック / オートロック / 宅配ボックス / 駐輪場 / バイク置き場 / クローゼット / 全居室収納 / 物置 / 下駄箱 / シャワー / 追い焚き / 浴室乾燥機 / オートバス / 脱衣所 / 給湯 / ウォシュレット / 洗面所独立 / シャンプードレッサー / 洗面所にドア / 都市ガスコンロ設置済 / 都市ガス / グリル / 食器洗乾燥機 / システムキッチン / 冷房のみ / エアコン / 24H換気システム / CATV / 光ファイバー / CATVインターネット / ネコ可 / 二人入居可 / 室内洗濯機置き場 / エアコン
※設備をクリック頂くと設備で条件を絞ることが可能です
ダイニング

ダウンライト付きでオシャレなリビングルーム✨
方角は北西向きになりますが全然暗くないです!
さらに14帖越えなので本当に開放感がございます。
キッチンが壁側にあるので家具の配置もしやすいですね^_^
キッチン

理想過ぎるキッチン✨
3口ガスコンロにグリル付きシステムキッチン。
高級賃貸ならではの食洗器も付いておりますよ♪
シンクも3日分は洗い物を溜めれる広さ!!!> <
バスルーム

浴室乾燥機、追い焚き機能つき!
この広さがあれば男性の方でも足を伸ばす事ができるのではないでしょうか!?
ファミリー様にもおススメの広さです。
脱衣所

収納が多い脱衣所です!
もちろん室内洗濯機置場があり、浴室乾燥機で乾かしたバスタオルはそのまま畳んで収納してください♪
洋室

洋室は全部屋広々としておりますのでベッドの配置も可能です◎
ペットが飼育可能なので、ペットの部屋、子供部屋、趣味部屋いろいろな使用用途で利用可能です✨
収納

全部屋収納クローゼットがございます。
収納には困らないですね!
「Alivis野田阪神」のおすすめポイント
こんな条件でお探しの方にオススメ
住みたい条件
その他の条件
お部屋探しでお困りの方へ
クラスモ梅田茶屋町店では大阪市内全域はもちろん、大阪梅田を中心に中崎町、中津、天六、南森町など北区の物件や福島区の物件などをメインにご紹介させていただいております。 新築の物件やペット可能な物件などお客様のご要望に合わせて幅広く物件を取り扱っております。 大阪市で賃貸物件をお探しの方は是非ハウスコムFC新大阪店へお問い合わせください。